english

YAJ arkitekter - Ylva Lindstedt & Jonas Nyberg arkitekter - förstasidan
om YAJ arkitekter
kontakta YAJ arkitekter
Think tank
YAJ i media
 
turism + varumärkesbyggande arkitektur

bostadsrätter i åre
resort-boende i åre
ksss klubbhus
kontor för sos international
destination åsnen
restaurang riva i strängnäs
hotell i Oxelösund
boende på västkusten
oxelösunds gästhamn etapp 2
oxelösunds gästhamn etapp 1

depå för jernhusen
gotland arena
kontor för plan sverige
seglarhotellet i sandhamn
gästhamn i bohuslän
gästhamn på ostkusten
flerbostadshus i västervik
destination järvsö
mariefreds gästhamn

ekerö marina

Volvo ocean race
mörby centrum
casa cor
oxelösund yacht- och båthall
kalmar konstmuseum
ålands sjöfartmuseum
sametinget i kiruna
fler projekt

villor + vindar
boende stadsplaner




 

 

 

vy från söder

ksss klubbhus, djursholm, 2013-pågående

Förslag på nytt klubbhus för KSSS Ranängen i Djursholm. Med utgångspunkt i KSSS nya grafiska profil och med ett dynamiskt uttryck riktar sig byggnaden mot vattnet, där verksamheten utspelar sig.

vy från terrass

vy från öster

vy från samlingssal

Vår ambition har varit att skapa en byggnad som berättar om det man i KSSS ägnar sig åt – nämligen segling.

I segling är fart centralt. Därav husets snabba uttryck! En långsmal byggnadskropp med ett doserat tak öppnar sig mot vattnet där verksamheten utspelar sig. Fasaderna är vita, liksom segel och båtskrov oftast är. Fasaderna är dekorerade med fotograferade segelsömmar. Sömmarnas radialskärning bidrar också till husets dynamiska uttryck. Fasadskyltningen är baserad på KSSS grafiska profil, där rubriktypsnittet har det traditionella typsnittet för segelnummer. Ett segel är generellt triangulärt – därav triangelformen i den södervända terrassen, i takutsprånget och i V-pelaren som bär terrasstaket.

Invändigt finns totalt 122 knapar i blankpolerad aluminium fördelade över klubbhusets alla rum. Knaparna används som krokar. Huset har en havsblå interiör. Kök, innerdörrar, kakel, och omklädningsrummen väggar och tak är havsblå. Så även husets ventilationsdon. Ett fartfyllt helväggsfoto en katamaran i rundning bildar fond i klubbhusets samlingssal. Fotograf är Oscar Kihlborg – KSSS-medlem, äventyrare och miljökämpe med fokus på livet i Östersjön.

Förutom att uttrycka segling har vårt mål med husets gestaltning varit att skapa en varm och välkomnande atmosfär. Därför vänder sig byggnaden inte bara mot vattnet, utan också mot hamnplanen och dess entré. Samlingssalens väggfoto har en varmt orange kulör, all belysning har en hög ljustemperatur, och delar av inredningen är av trä.

Huset är placerat några meter från vattenbrynet på den delen av hamnplanen, som nås av mest värmande solljus, över så lång tid på dagen som möjligt. När solen står lågt på vintern och på vårens morgnar, studsar solstrålarna mot vattenytan och solkatter glittrar i samlingssalens vita innertak.

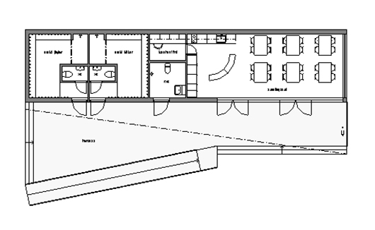
Byggnaden mäter utvändigt 20,7 x 4,5 m. Den har en längsgående terrass mot söder för hantering av segel och för genomgångar i träningsgrupperna. De båda terrasstrapporna fungerar också som gradänger att sitta i, så att två träningsgrupper vända åt varsitt håll kan samlas samtidigt för genomgångar i samband.

Direkt från terrassen nås de båda omklädningsrummen med WC och dusch. Direkt från terrassen nås även samlingssalen och ett handikapp-WC.

Markförhållanden i Ranängen är de sämsta tänkbara. Marken består av utfyllnadsmassor, varvsskräp och lera som tidigare har glidit. Därför är huset grundlagt med pålning. Huset har en lätt stålkonstruktion på en stålram på betongplintar ovanpå pålarna. Hamnplan kan därmed svämma över utan att orsaka husproblem. Trossbotten är oorganisk med lättreglar och cellplastisolering. Huset har prefabricerade vägg- och takelement i form av sandwichelement i plåt.

fasad från söder

 

fasad från norr

fasad från öster och väster

längdsektion

plan

takplan

situationsplan


arkitekter
 Ylva Lindstedt, Jonas Nyberg och Charlotte Fredriksson
beställare KSSS – Kungliga Svenska Segelsällskapet
plats Djursholm
skede 
gestaltningsförslag, bygglovshandling och förfrågningsunderlag/bygghandling
år
 2013-pågående
area (BOA) 78 kvm

 

modellfoton