english

YAJ arkitekter - Ylva Lindstedt & Jonas Nyberg arkitekter - förstasidan
om YAJ arkitekter
kontakta YAJ arkitekter
Think tank
YAJ i media
 
turism + varumärkesbyggande arkitektur
villor + vindar
vindar på södermalm
villa criss cross

villa kapla
villa marensborg
villa i kuala lumpur
villa n13
villa s13
villa p14
villa k16
villa s41
fritidsboende i åre
villa i täby
fritidshus på aspö
villa i danderyd
fritidshus i båstad
kök i näsby park
villa i gifu, japan
råvindar i enskede
fler projekt
boende stadsplaner




 

 

 

villa F27, Lidingö

villa kapla, lidingö, 2008-2010

Villa Kapla är ett souterränghus byggt på kaplastavarnarnas logik. Det ersätter en liten villa i Hersby på Lidingö för att rymma en barnrik familj där föräldrarna också arbetar hemifrån. Det fanns tre givna ingångsparametrar för vårt gestaltningsarbete: att bibehålla urprungshusets källargrund, oljad lärk som fasadbeklädnad och ett stramt, samtida uttryck. Med hjälp av barnens Kaplastavar sammanfattade vi kundens intentioner. Läs mer nedan.

villa F27, Lidingö

villa F27, Lidingö

villa F27, Lidingö

villa F27, Lidingö

villa F27, Lidingö

villa F27, Lidingö












villa kapla, lidingö, 2008-2010

ett souterränghus byggt på kaplastavarnarnas logik, 350 kvm

Villa Kapla ersätter en liten villa i Hersby på Lidingö för att rymma en barnrik familj där föräldrarna också arbetar hemifrån. Det fanns tre givna ingångsparametrar för vårt gestaltningsarbete: Att bibehålla urprungshusets källargrund, oljad lärk som fasadbeklädnad och ett stramt, samtida uttryck. Med hjälp av barnens Kaplastavar sammanfattade vi kundens intentioner. läs mer nedan.

koncept - kapla
Enligt Kaplabyggeriets logik staplade vi träklotsar på varandra. Där de invändiga rummen pga antal, ytmått eller utblickar krävde det, fick klotsar kraga ut i de olika väderstrecken över den gamla källargrundens kontur.

Resultatet blev en rätvinklig, organisk byggnadsvolym i trä, med tre våningar i en sluttning. Hemmets offentliga zoner får en glidande övergång till direktanslutande trädgårdsrum i de första två planen. Tredje våningen är familjens mer privata sfär med sovrum, badrum, föräldrarnas hemmaarbetsplats och ett gemensamt, mindre allrum.

gröna baktankar
Villa Kapla är utfört med gröna baktankar, där också miljöteknik, riklig isolering samt naturmaterial ger kunden mervärden i form av låga uppvärmningskostnader, ett hälsosamt inomhusklimat och möjligheter till källsortering, kompostering och en prunkande köksträdgård i direktanslutning till köket.

Huset har generösa glaspartier, som kopplar hemmet till både intima trädgårdsrum och vidsträckta vyer via fullvuxna tallars grenverk. Sommartid är glaspartierna skyddade från solinstrålning av överkragande byggnadsvolymer. Vinterns lägre solvinkel välkomnar den värmande solenergin in i hemmet, där den lagras i en tung murstock.

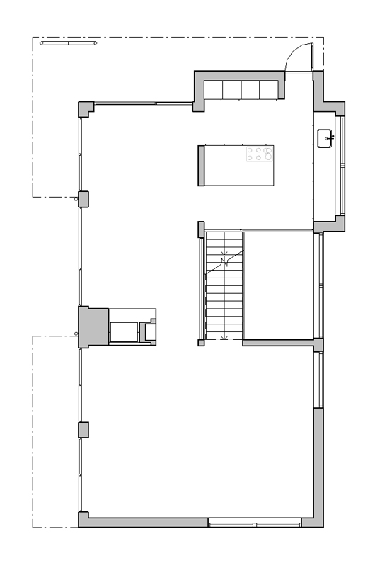
köket – hemmets mittpunkt
Mitt i hemmet, på dess mellanvåning och i anslutning till entré-atrium och trapphus ligger köket. Här har man visuell kontakt och kontroll över gatan, entrén, matsalen och vardagsrumme, som skiljs åt av den dubbelvända eldstaden, samt möblerade terrasser och nästan hela trädgården. Via atriet har man också visuell kontakt med dem som vistas i hela familjens film- och musikrum på husets första våningsplan. I köket finns det också plats för läxläsning och lek.

vår agenda för hem - modern arkitektur med hög mysfaktor
För oss är ett hem en plats som är på en gång vilsam och inspirerande, som fyller dem som vistas där med en behaglig känsla av upprymdhet. Ett hem är också en plats för både fest och vardag, och som med nödvändighet gör livspusslet i en familj så smidigt och lustfyllt som bara är möjligt. Vi vägrar motsättningar mellan funktion och estetik!

Rymd är för oss en kvalitet i sig. Vi strävar därför alltid efter att tänja upplevelsen av rum, bl a med hjälp av kontinuerliga rum, med nischer som kan slutas i olika grad beroende på behov av privathet. Liksom i Villa Kapla innebär det ofta byggnader med glidande övergångar mellan ute och inne, och bostäder som växer och krymper med årstiderna.

För att ytterligare tydliggöra upplevelsen av ett enda kontinuerligt rum är Villa Kaplas interiör också sammanhållen i material: Det har en och samma ljusa vägg- och takfärg, samma oljade, massiva ektiljor i golv och samma Offerdalsskiffer på entrégolv, i fönsterbänker och på eldstadens gnistskyddade ytor. De privata nischerna är däremot expressivt färgsatta av respektive familjemedlem! Hela hemmet har av sammanhållande anledning en generell belysningsprincip med takinfällda riktbara spotlights och möjlighet att montera feature-armaturer i utvalda lägen – både i de invändiga rummen och i dess fortsättning i trädgårdsrum med tak av överkragande byggnadsvolymer.

I Villa Kapla, liksom i all vår arkitektur, har vi strävat efter en modern arkitektur – utan avkall på intimitet och hög mysfakor!


arkitekter
Ylva Lindstedt och Jonas Nyberg
beställare privat
plats Lidingö
skede gestaltningsförslag, bygglovshandling, förfrågningsunderlag, bygghandling och uppföljning under produktion
år 2008-2010
area 350 kvm
konstruktör Ingemar Johansson, Ritabygg AB
byggnadsentreprenör Lindströms Bygg AB