english

YAJ arkitekter - Ylva Lindstedt & Jonas Nyberg arkitekter - förstasidan
om YAJ arkitekter
kontakta YAJ arkitekter
Think tank
YAJ i media
 
turism + varumärkesbyggande arkitektur
villor + vindar
vindar på södermalm
villa criss cross

villa kapla
villa marensborg
villa i kuala lumpur
villa n13
villa s13
villa p14
villa k16
villa s41
fritidsboende i åre
villa i täby
fritidshus på aspö
villa i danderyd
fritidshus i båstad
kök i näsby park
villa i gifu, japan
råvindar i enskede
fler projekt
boende stadsplaner




 

 

 

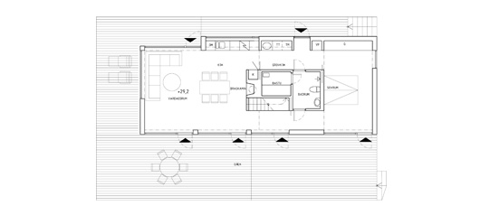
fritidshus i kattvik, båstad, 2001

 

plan